MeasureAll, la prise de mesure à partir de plans PDF

Quelle mission avons-nous acceptée ?  

La société MeasureAll a fait appel à Mobizel pour concevoir et développer une application mobile. L’application est développée en flutter, ce qui assure une compatibilité avec iOS et Android. 

Notre mission ? Concevoir et développer MeasureAll, un outil incontournable pour prendre des mesures facilement à partir de plans PDF. L’application peut s’utiliser en mode hors connexion pour s’assurer d’avoir moins de papiers, mais toujours ses mesures à portée de main !

Une application, mais pour quoi faire ? 

L’application s’adresse aussi bien aux particuliers qu’aux professionnels du bâtiment (plaquiste, charpentier, menuisier, maçon, architecte, …) ou des professions connexes (agences immobilières, notaires).

Elle permet de : 

  • Faire des mesures et calculs de distances, surfaces, volumes et toitures à partir de plans PDF que l’utilisateur peut importer dans l’application
  • Ordonner les mesures dans des catégories pour les regrouper selon leur domaine (murs, câbles électriques, tuyauterie, …)
  • Connaître et vérifier toutes les dimensions d’une maison
  • Accéder à la liste des plans et naviguer sur les zones des différentes pages
  • Consulter l’ensemble des plans et mesures sans connexion internet

Quelle expertise pour une telle mission ?

L’application mobile est développée en Flutter.

Notre accompagnement 

  • La déclinaison de l’identité graphique sur l’app mobile
  • UI et UX des écrans 
  • Conception fonctionnelle et technique
  • Développement mobile de l’application
  • Mise en place des abonnements intégrés Google Play/AppStore

Les fonctionnalités développées 

Onboarding mobile

C’est la première impression de l’application ! L’onboarding est composé de différents écrans qui s’affichent lors du lancement de l’application.

Les écrans ont été designés et développés pour expliquer comment fonctionne l’application mobile et comment s’en servir. L’outil simple et intuitif permet une prise en main rapide.

L’utilisateur comprend instantanément les bénéfices de l’application avec les fonctionnalités proposées.

Nous avons rédigé quelques conseils pour concevoir un bon onbaording mobile.

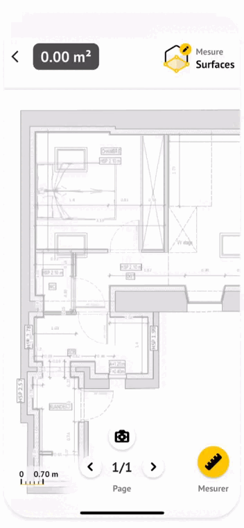
Ouvrir et naviguer dans un plan

En ouvrant l’application, la première étape est d’importer les plans dans l’application. L’application ouvre les plans en PDF pour une navigation aisée entre les différentes zones et facilite la prise de mesure.

Faire des mesures et les consulter

L’application mobile permet de mesurer très rapidement et facilement sur les surfaces de planchers, murs, plafond, volumes, angles et toitures. Elle se base sur la définition d’une échelle à effectuer à la première initialisation du document.

A partir de formats de fichiers PDF, l’application mesure les dimensions de tout type d’intérieur :

  • Salle de bain
  • Cuisine
  • Salle à manger
  • Chambre
  • Cave

Et tout type d’extérieur : 

  • Façade
  • Piscine
  • Dallage de jardin

Export des métrés

L’app mobile crée un dossier et sauvegarde les différentes mesures réalisées. Ces mesures vous aident à déterminer ensuite les justes quantités de matériaux nécessaires pour les travaux :

  • Volume de béton pour les murs, fondations, …
  • Quantité à enduire pour les murs ou les plafonds
  • Quantité de matériaux de revêtements, plinthes 

Il est rendu possible d’exporter les métrés en fichier .csv ou .txt. Ces mesures sont des éléments indispensables pour passer commande et vérifier des devis reçus. 

Mode hors connexion

Quelles que soient les conditions de travail sur le chantier, le réseau n’est pas nécessaire. L’application a été développée pour fonctionner hors ligne et n’a pas besoin de connexion pour fonctionner. Les utilisateurs sont assurés de retrouver leurs plans et mesures directement dans leur téléphone. 

Achat in App

L’application est payante sous la forme d’un abonnement accessible via les achats intégrés Google Play et les achats in-app sur iOS.

Pour en savoir plus sur l’application, rendez-vous sur le site internet : https://measureall.app/